---
title: "2.2 Bæredygtig byudvikling"
description: "En bæredygtig udvikling er en udvikling, som opfylder de nuværende generationers behov"
date: "2025-08-25"
created: "2025-03-12"
---

[Hjem](https://kommuneplan2025.assens.dk/)

                    [Se Kommuneplan 2025 - 2037](https://kommuneplan2025.assens.dk/se-kommuneplan-2025-2037)

                    [2: Overordnet Udvikling](https://kommuneplan2025.assens.dk/se-kommuneplan-2025-2037/2-overordnet-udvikling)

                [2.2 Bæredygtig byudvikling](https://kommuneplan2025.assens.dk/se-kommuneplan-2025-2037/2-overordnet-udvikling/22-baeredygtig-byudvikling)

# 2.2 Bæredygtig byudvikling

Assens Kommune vil understøtte og udvikle levende lokalmiljøer ved at tage udgangspunkt i et områdes stedbundne kvaliteter og bygge oven på med attraktive omgivelser og tid til det vigtige. I det ligger blandt andet, at udviklingen af byerne fortrinsvis vil ske der, hvor de grundlæggende services er til stede, og hvor der er ledig kapacitet.

En bæredygtig udvikling er en udvikling, som opfylder de nuværende generationers behov uden at bringe fremtidige generationers mulighed for at opfylde deres behov i fare. (Definition på bæredygtig udvikling fra Brundtlandrapporten, 1987).

## Delafsnit

###

                                    Vision

”I 2030 vælger flere at blive og bosætte sig”. Sådan lyder et af målene i Vision 2030 – med vilje og hjerte, for livet leves på mange forskellige måder i Assens Kommune. Her kan alle udleve deres boligdrømme, uanset om boligen ligger midt i byen, nær skoven, ved vandet eller med udsigt over markerne. Naturen er altid lige uden for døren.

Samtidig ”Passer vi godt på vores natur og miljø” og vil bidrage til en renere verden til gavn for vores efterkommere. Derfor har vi en grøn og bæredygtig profil og vil går forrest, når det handler om at benytte og værne om vores ressourcer, beskytte vores miljø og sikre rent drikkevand. Vi opfører bæredygtige byggerier og udnytter vedvarende energikilder. Vi arbejder med en cirkulær økonomi, hvor vi genanvender materialer og ressourcer mest muligt.

Med planstrategiens fokus på at skabe og understøtte levende lokalmiljøer styrkes disse ambitioner endnu mere. Derfor vil den fysiske udvikling af vores byer og landsbyer fokusere på service, tilstedeværelsen af hverdagsfunktioner, fortætning, boligrotation og ikke mindst sammenhængskraft land og by imellem.

’Stedbundne kvaliteter’ udgør fundamentet for al planlægning i kommunen. I det ligger en anerkendelse af de mange forskellige værdier og fysiske strukturer, som giver kommunens mange byer og landsbyer deres unikke karakter og værdi. Det Levende lokalmiljø skabes og styrkes ved at bygge videre på lokalområdets Stedbundne kvaliteter ved at sikre Attraktive omgivelser og Tid til det vigtige.

###

                                    Mål

Det er Byrådets mål:

- at vi har en positiv befolkningsudvikling og nettotilflytning.
- at vi skaber mulighed for øget bosætning dér, hvor efterspørgslen er til stede, og potentialet er størst.
- at boligtilbuddene er mangfoldige og rammer en bredt sammensat målgruppe – både alders- og livsstilsmæssigt.
- at nye boligområder indrettes med fokus på bæredygtighed og klimatilpasning og med let adgang til rekreative og grønne områder, hvor der er mulighed for at udfolde sig kreativt og aktivt.
- at byudvikling planlægges med udgangspunkt i de stedbundne kvaliteter, så vi bl.a. gennem boligrotation og fortætning får et så differentieret boligudbud som muligt, hvor de enkelte byers styrker fremhæves.
- at skabe byudviklingsplaner, der skaber de strategiske planmæssige rammer for at skabe værdi for borgere og brugere ved at koble indsatsområderne sundhed, energi og klima, kultur og fritid, natur og landskab, erhverv og detailhandel, infrastruktur, arealudlæg og bebyggelseskarakter.
- at skabe planer med en klar profil af de enkelte byer, der kan indgå i en markedsføringsindsats af byerne, båret af såvel kommunen som indbyggerne i byerne.
- at skabe en proces om udviklingsplanerne, hvor byernes borgere, virksomheder, foreninger og institutioner ønsker at deltage aktivt og stille deres viden og kompetencer til rådighed, fordi de oplever samarbejdet som meningsfuldt, motiverende og givende.

###

                                    Retningslinjer

**2.2.1 Zoneforhold ved byudvikling**
Arealer, der tages i anvendelse til byvækstformål, skal overføres til byzone med mindre andet fremgår af kommuneplanens øvrige retningslinjer eller kommuneplanens rammedel.

**2.2.2 Nye byzonearealer**
Udlæg af nye byzonearealer skal ske i umiddelbar tilknytning til byer i det kommunale bymønster jævnfør kommuneplanens afsnit 2.1 om kommunens bymønster.

Såfremt der i tilknytning til en bymønsterby udlægges nye byzonearealer, skal den pågældende bymønsterby normalt også optages i byzone.

**2.2.3 Behov for nye byzonearealer**
Der kan kun ske udlæg af nye byzonearealer, hvis der kan dokumenteres et behov herfor.

I den kystnære zone forudsættes det som hovedregel, at den rummelighed, der findes i allerede udlagte byzonearealer så vidt muligt udnyttes, før der udlægges nye byzonearealer.

*Fortolkningsbidrag til retningslinje 2.2.3*

*Kommuneplanens dokumentation for behovet for nye arealudlæg skal som minimum indeholde en opgørelse over restrummeligheden i kommunens bymønsterbyer og af det forventede byggebehov inden for planperioden. Byggebehovet skal vurderes i forhold til den hidtidige udvikling.*

*Derudover kan opgørelsen indeholde et skøn over, hvor stor en del af byggeriet, der finder sted ved fortætning i eksisterende bebyggede områder, ved omdannelse af eksisterende arealer samt ved byggeri i landzonelandsbyer.*

*I vurderingen af behovet vil der blive lagt vægt på, om der er en rimelig overensstemmelse mellem rummelighed og forventet byggebehov. Kommunen har dog lov til at tage hensyn til byvækstmulighederne i den enkelte by, såfremt der er forhold, som kan begrunde et behov.*

**2.2.4 Byudviklingsprincip**
Etablering af nye bolig- eller erhvervsområder skal principielt ske i umiddelbar tilknytning til eksisterende bymæssig bebyggelse. Der fokuseres på byudvikling gennem boligrotation, transformation og fortætning, gerne før nyudlæg.

**2.2.5 Arealudlæg**
Arealudlæg skal ske under hensyntagen til eksisterende arealanvendelser, så eventuelle konflikter minimeres.

**2.2.6 Byudvikling og landbruget**
Der skal ved valg af konkrete byvækstområder tages hensyn til landbrugsejendommenes arronderingsforhold, så der i videst mulige omfang undgås indgreb i en i forvejen hensigtsmæssig arrondering af landbrugsejendomme.

Ved udlæg af nye byzonearealer skal der redegøres for afvejningen imellem byvækstinteresser og jordbrugsinteresser.

Arealanvendelse til miljøfølsomme formål skal normalt respektere en afstand af 300 meter til landbrugets driftsbygninger med henblik på at forebygge miljøkonflikter.

**2.2.7 Placering af nye boligområder**
Nye boligområder etableres med fokus på bæredygtighed, trivsel og livskvalitet. Stedbundne kvaliteter, landskabets kvaliteter og naturindhold skal respekteres og bruges som afsæt for byudviklingen.

**2.2.8 Bæredygtigt byggeri**
Byudvikling skal planlægges, så bæredygtigt byggeri, energiminimerende løsninger og brugen af miljøvenlige materialer fremmes.

**2.2.9 Aktivitetstilbud**
Ved udlæg af nye byrum og omdannelse af eksisterende skal den fysiske planlægning ske med særligt fokus på at skabe aktivitetstilbud, der kan fremme en sund og aktiv livsstil.

**2.2.10 Grønne arealer**
Ved udlæg af nye boligområder skal der sikres grønne friarealer, grønne strukturer og gode stiforbindelser.

**2.2.11 Rekreative interesser og biodiversitet**
I den fysiske planlægning skal de rekreative interesser, beskyttelse af værdifulde naturområder og bynær skovrejsning indgå som en væsentlig parameter for at fremme en mangfoldig flora og fauna, beskytte grundvandet og klimaet og skabe gode vilkår for naturoplevelser for borgerne.

**2.2.12 Planlægning i forhold til øgede nedbørsmængder**
Af hensyn til de globale klimaforandringer skal klimasikring indgå i planlægningen af nye boligområder og omdannelsen af eksisterende. Klimasikring skal tilføje en merværdi, og hvor det er muligt skal klimasikring i form af vand på terræn planlægges som en blå struktur, der kan understøtte de rekreative muligheder og oplevelser.

**2.2.13 Klimaregulering gennem beplantning**
Ved udlæg af nye og i eksisterende byområder kan beplantning af udearealer udnyttes til klimaregulering ved at foreskrive dette i lokalplaner for områderne.

**2.2.14 Byudvikling og forsyning**
Nye byområder skal anlægges sådan, at de i videst muligt omfang kan betjenes med fælles vandforsyning, fælles spildevandsafledning og kollektiv trafik, og så der er gode adgangsforhold til den kollektive trafiks stoppesteder, herunder at der etableres stiforbindelser i fornødent omfang.

Bredbåndsinfrastruktur skal indgå som et naturligt forsyningselement på linje med kloakering, el og vand, og i forbindelse med gravearbejder skal der nedlægges tomme rør til eventuel senere benyttelse for fiberfremføring.

**2.2.15 Trafik**
Ved udlæg af nye og i eksisterende byområder skal den fysiske planlægning have særligt fokus på kollektiv­, cykel- og gangtrafik.

**2.2.16 Reduktion af transportbehov**
Det prioriteres, at byfunktioner placeres bynært, så den enkeltes transportbehov holdes på et minimum og er muligt at dække via kollektiv trafik eller cykel­/gangtrafik.

**2.2.17 Byudvikling og infrastruktur**
Nye byområder skal anlægges sådan, at der ikke skabes trafikale problemer på det overordnede vejnet.

Udlæg af arealer kan ikke finde sted, før der er redegjort for, at eventuelle problemer i forhold til det overordnede vejnet kan løses tilfredsstillende.

Udlæg af arealer kan ikke finde sted, før der er redegjort for, at eventuelle problemer i forhold til planlagte eller byggelinjesikrede fremtidige veje jævnfør kommuneplanens kapitel 3 kan løses tilfredsstillende. Ved udlæg af nye byområder langs det overordnede vejnet bør der i planlægningen fastlægges bestemmelse om afskærmende beplantning eller anden form for afskærmning langs bebyggelse ud mod det overordnede vejnet.

**2.2.18 Byudvikling i forhold til støjfølsom arealanvendelse**
Støjbelastede arealer må ikke udlægges til støjfølsom anvendelse, medmindre den fremtidige anvendelse kan sikres mod støjgener. Udlæg af støjbelastede områder til boliger, rekreative formål eller andre støjfølsomme arealanvendelser, forudsætter, at der samtidigt planlægges for afskærmningsforanstaltninger m.v., der sikrer den fremtidige anvendelse mod støjgener.

Når der planlægges for byomdannelse, hvor støjbelastede områder udlægges til støjfølsom anvendelse, skal der foreligge sikkerhed for, at støjbelastningen er bragt til ophør inden for en periode på ca. 8 år.

**2.2.19 Placering af almene boliger**
Placeringen af almene boliger skal ske, så der er sammenhæng mellem boligtype og målgruppe og kommunens services og strukturer.

**2.2.20 Placering af ældre­- og aflastningsboliger**
Ældre-­ og aflastningsboliger skal placeres i byerne i forhold til en hensigtsmæssig geografisk fordeling samt nærhed til handel, kommunale service og offentlig transport.

**2.2.21 Byudvikling i forhold til områder med særlige drikkevandsinteresser**
Områder med særlige drikkevandsinteresser, følsomme indvindingsområder og indvindingsoplande til almene vandforsyninger uden for OSD skal som hovedregel friholdes for byvækst og ændringer i arealanvendelsen til mere grundvandsbelastende aktiviteter.

**2.2.22 Konsekvensområde omkring skibsværftet på Assens Havn**
Inden for konsekvensområdet omkring skibsværftet på Assens havn i rammeområde 1.2.E.7 skal der ved planlægningen for miljøfølsomme anvendelser redegøres for planens virkning på skibsværftet, herunder skibsværftets drifts- og udviklingsmuligheder.

Konsekvensområdet omkring Assens Skibsværft ses på retningslinjekort 2.2.

**2.2.23 Transformationsområde ved Nordre Havnevej**
Inden for transformationsområdet Assens Havn kan der planlægges for boliger, når støjen fra Assens skibsværft på arealet ikke overskrider Miljøstyrelsens vejledende grænseværdier for støj med mere end 5 dB på den facade og udendørs opholdsarealer, der vender ud mod skibsværftet.

Ved lokalplanlægning for nye boliger inden for transformationsområdet ”Assens Havn”, skal der redegøres for, hvordan lokalplanen tager højde for, at planlægningen ikke kan give grundlag for at skærpe vilkårene for produktionsvirksomheder inden for rammeområde 1.2.E.7, som følge af regler eller afgørelser efter miljøbeskyttelsesloven. Hvis virksomheden har udviklingsplaner, skal der ligeledes redegøres for, hvorledes lokalplanen tager højde for disse. Samtidig skal redegørelsen indeholde oplysninger om de særlige støjvilkår i transformationsområdet.

Transformationsområdet ses på retningslinjekort 2.2

###

                                    Redegørelse

**Planstrategi 2023 – Levende lokalmiljøer**
Planstrategien blev vedtaget af byrådet i december 2023. Rammen for strategien er Levende lokalmiljøer. Trædestenene for at skabe og understøtte Levende Lokalmiljøer er de tre perspektiver: Stedbundne kvaliteter, Attraktive omgivelser og Tid til det vigtige.

Stedbundne kvaliteter er udgangspunktet for al fysisk planlægning i kommunen, herunder byudvikling. Det vil sige, at byer og landsbyer udvikles med afsæt i og respekt for områdets fysiske strukturer og unikke historie – alt det, der giver karakter og værdi.

I Attraktive omgivelser ligger, at arealer skal udvikles mest hensigtsmæssigt i forhold til det landskab, de befinder sig i. Det vil sige, at anlæg, boliger og erhverv placeres i de områder, der er mest robuste og bedst egnede til det.

At vi vil sikre Tid til det vigtige vil sige, at vi gennem planlægning vil sikre adgang til og kvalitet i de primære hverdagsfunktioner og services, fordi vi tror på, det vil være med til, at borgerne får mulighed for at leve det, der i deres øjne er det gode liv.

Udviklingen af vores byer og landsbyer vil være med afsæt i de stedbundne kvaliteter og i tillæg til det, bygges der oven på med Attraktive omgivelser og Tid til det vigtige.

**Bæredygtig byudvikling**
Ideen om at arbejde aktivt for at gøre byerne bæredygtige blev for første gang for alvor beskrevet i Brundtlandrapporten, som blev til i kølvandet på 1980´ernes miljødebat, hvor man opfattede miljø og økonomisk udvikling som modsætninger. I stedet for at tale om, at man skulle beskytte miljøet ved at rense forurenet miljø, begyndte man at fokusere mere på, hvordan man kunne forebygge miljøproblemer og finde løsninger med både økonomiske og miljømæssige gevinster. Rapporten blev udarbejdet under FN’s Verdenskommission for Miljø og Udvikling med den daværende norske statsminister Gro Harlem Brundtland som formand og fik derfor navnet Brundtlandrapporten. I rapporten blev bæredygtighed beskrevet som et helhedsorienteret begreb, hvilket vil sige, at bæredygtighed ikke alene omfattede miljø, men også sociale forhold og økonomi.

Et af omdrejningspunkterne i planstrategien er hensigtsmæssig brug af ressourcer. Det er afspejlet i kommunens bymønster, som der lægger op til, at byudvikling fortrinsvis skal ske de steder, den kritiske masse og infrastrukturen understøtter det, og primært gennem boligrotation og fortætning. Hensigtsmæssig brug af ressourcer kommer også til udtryk i planstrategiens tre perspektiver, hvor Stedbundne kvaliteter udgør afsættet for al udvikling, hvortil der sikres Attraktive omgivelser og Tid til det vigtige. I dette ligger, at vi vil styrke de ressourcer, der allerede er til stede i et givent område, ved at tage udgangspunkt i dem, når vi planlægger for ny udvikling.

**Lokalsamfundene som ambassadører**
Bosætning er fortsat et højt prioriteret fokuspunkt, og der skal gøres en aktiv indsats for at fremme boligudbuddet og højne kvaliteten i vores byer. Vi har et mål om at tiltrække nye borgere til kommunen og fastholde de borgere, vi har, og en forudsætning for at lykkes med det er, at vi matcher de krav, der stilles af nutidens familier. For at sikre bæredygtig og fornuftig brug af ressourcer fokuseres der på boligrotation og fortætning samt alternative og moderne måder at leve og bo.

En vigtig forudsætning for at Assens Kommune skal lykkes som en attraktiv kommune at flytte til er, at vi giver borgerne lyst til at være de gode ambassadører, der vidt og bredt fortæller om Assens Kommune som det gode sted at bo og leve.

Borgerne og deres engagement er derfor kommunens vigtigste ressource i forhold til bosætning, og det sætter krav til kommunen om at støtte op om borgerne engagement og give dem grundlaget for at kunne udvikle deres lokalsamfund.

**Udviklingsplaner og nye arealudlæg til boligrammer**
Der udarbejdes udviklingsplaner for kommunens største byer. Udviklingsplanerne vil medvirke til at definere fremtidige arealer til byudvikling, hvorfor denne redegørelse vil blive revideret sideløbende med, at byudviklingsplanerne vedtages.

I 2014-15 blev der lavet en udviklingsplan for Haarby: ”Strategi- og Idekatalog for udvikling af Haarby.” Den præsenterer en række ideer til, hvordan Haarby kan forskønnes gennem byfornyelse og forskønnelse og dermed synliggøre de stedbundne kvaliteter. Den medførte ingen ændringer i kommuneplanen.

I 2017 blev der udarbejdet en udviklingsplan for Tommerup og Tommerup Stationsby, som præsenterer fire løftestænger for hvordan de to byer kan udvikles som ét samlet vækstområde. Fremtidens Tommerup - en bæredygtig by i udvikling.

![](https://kommuneplan2025.assens.dk/i/MOLIRIMEDIA/2e18554b-7832-45b4-c99a-08dbb8db3039?width=800)

I Tommerup på Overmarken tegner en strukturplan og rammelokalplan mulighederne for at udvikle en ny bydel mellem Tommerup og Børnehaven Overmarksgården. En grøn kile skal binde by og børnehave sammen og støde op til de nye boligområder, der udvikles med så stor variation som muligt. Klimasikring, bæredygtighed og naturen i byen er nøgleordene.

![](https://kommuneplan2025.assens.dk/i/MOLIRIMEDIA/d0d23b4e-8a90-4523-c9a8-08dbb8db3039?width=800)

I Tommerup St. arbejdes der på at sikre en byomdannelse af det stationsnære erhvervsområde omkring blandt andet det gamle savværk ved Buchwaldsvej. Området vil kunne rumme omkring 150-250 boliger og vil med sin stationsnære beliggenhed være et attraktivt alternativ til nye parcelhusudstykninger. I forbindelse med kommuneplanrevision 2021 ønskede lokalrådet i Tommerup at der blev udlagt ca. 10 ha som nyt boligområde øst for Tallerupssøerne. Dette stemmer overens med udviklingsplanen for de to Tommerupper, så det er indarbejdet med revisionen.

![](https://kommuneplan2025.assens.dk/i/MOLIRIMEDIA/832c7a41-00ed-49b4-c9a9-08dbb8db3039?width=800)

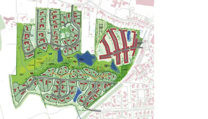
Aarup er ligeledes en attraktiv bosætningsby, og det er en af de byer, der har haft en god befolkningstilvækst de sidste år. I 2018 blev der udarbejdet en byvækstplan for Aarup Syd, der sætter de overordnede rammer for udvikling af fremtidige attraktive boligområder og rekreative landskaber i Aarup inden for de næste 25-30 år. Byvækstplanen udstikker de helt store linjer for udviklingen. Der skal efterfølgende ske en mere detaljeret planlægning i form af bebyggelsesplaner og senere lokalplaner for de enkelte etaper/udlæg til bolig­områder.

Byvækstplanen omfatter et areal på cirka 100 ha. Heraf bliver cirka 31 ha udlagt til boligområder, cirka 34 ha til nye rekreative områder, 10 ha forbliver eksisterende naturområde, skov eller sø og cirka 25 ha forbliver eksisterende landbrugsareal. Aarup Syd forventes at kunne rumme omkring 350 nye boliger - alt efter fordelingen mellem parcelhuse og tæt/lave bebyggelser.

![](https://kommuneplan2025.assens.dk/i/MOLIRIMEDIA/0541a6e9-ed21-4401-c9aa-08dbb8db3039?width=800)

Juni 2019 blev udviklingsplanen Fremtidens Assens vedtaget. Den beskriver, hvordan byens kontakt med vandet bruges som en styrke og hvordan byen vendes mod vandet som et fysisk helhedsgreb. Der ud over arbejdes der med en ny havneplads og Multitek som åbningstræk for Fremtidens Assens. Det nye Kyst- og lystfiskercenter skal ligeledes placeres i Assens by.

![](https://kommuneplan2025.assens.dk/i/MOLIRIMEDIA/cb1331bf-06f2-43ea-c9ab-08dbb8db3039?width=800)

I juni 2022 blev udviklingsplanen for Vissenbjerg og omegn vedtaget. Udviklingsplanen beskriver en række udviklingsprincipper for byfællesskabet Vissenbjerg, Bred, Skallebølle og Skalbjerg, som udfoldes ift. de 3 indsatsområder bosætning, erhverv og turisme. Visionen for området er ”et stærkt fællesskab omkring naturen”. Planens greb konkretiseres yderligere i en række supplementsblade.

I 2024 og 2025 bliver der udarbejdet en udviklingsplan for Glamsbjerg. Byen midt i kommunen ligger ved det gamle skinnetracé og naturskønt op mod Krengerup Skov og Gods. Glamsbjerg er kendetegnet af de mange uddannelser, institutioner og faciliteter såsom hal, paddel hal, friluftsbad m.m. Assens Kommune ser et potentiale i at tydeliggøre Glamsbjergs kvaliteter som by, blandt andet ved at styrke byens identitet, sikre sammenhængskraften og fremme bylivet. I forhold til bosætning er fortætning langs hovedgaden og boligrotation i fokus i en central drøftelse om, hvad hovedgaden fremadrettet skal kunne.

Skovrejsning er på vej i Brylle, og det giver os muligheden for at skabe en unik kobling mellem ny by og ny skov. Byen ved skoven er nøgleordet og med skov i baghaven vil rekreative muligheder og friluftsliv kunne blive det, der bærer et nyt boligområde, der med sin beliggenhed tæt på Odense vil kunne tilbyde noget helt unikt. I Brylle er der også en del uudnyttede rammer til boliger, som der forventes at blive gennemført planlægning for i den kommende planperiode.

At skabe en god og bæredygtig by handler ikke kun om at have byggegrunde på hylden. Det handler om at skabe den hele by, hvorfor der i høj grad skal være fokus på infrastruktur og tilgængelighed, på service og fritidstilbud, kulturliv, naturoplevelse mv. – listen er lang. Når vi byudvikler og byfornyer vil alle aspekter derfor indgå. Udviklingsplanerne skal, udover at sætte retning for byernes udvikling, danne grundlag for økonomiske prioriteringer, der kan løfte byernes kvaliteter og dermed tiltrækningskraft i forhold til bl.a. bosætning.

**Kvaliteter og muligheder**
Kvaliteterne i kommunen er især muligheden for at slå sig ned i et af de mange smukke steder i landskabet, der varierer mellem åbent land, skov og kyst. Beliggenheden mellem Odense og Trekantområdet giver gode beskæftigelses- og uddannelsesmuligheder inden for en overkommelig pendlingsafstand.

For at sikre en positiv bosætningsudvikling, er det vigtigt at sikre muligheder og bredde i udbuddet af bosætningsmuligheder og boligtyper. Assens Kommune vil skabe mulighed for boligudstykninger med store grunde og grønne fællesområder, hvor borgerne kan bygge smukt, kreativt og udleve deres boligdrøm. Lige så vigtigt er det at tilvejebringe bosætningsmuligheder for de borgere, der ønsker mindre og praktiske boliger, hvor der er mulighed for et større samspil og fællesskab imellem beboerne. Særligt skal der fokuseres på fortætning og boligrotation for at sikre et bredt udbud af boliger og fornuftig brug af ressourcerne.

**Restrummelighed til boliger**
Boligudbygningen styres med vægt på de større byer, men støtter også udviklingen ved de øvrige udpegede byer i bymønstret. Eksisterende restrummelighed for arealudlæg til boligformål fremgår af tabellen.

Restrummelighed til boliger
| By | Restrummelighed \* til boliger (hektar) |
| --- | --- |
| Assens | 46,5 ha |
| Aarup | 28,7 ha |
| Brunshuse | 1,8 ha |
| Brylle | 30,4 ha |
| Glamsbjerg | 38,8 ha |
| Haarby | 17,9 ha |
| Jordløse | 7,0 ha |
| Skallebølle | 5,7 ha |
| Tommerup | 33,6 ha |
| Vissenbjerg | 13,5 ha |
| I alt | 223,9 ha |

*Tallene i tabellen er opgjort forår 2025. \* I restarealet er indregnet alle helt eller delvist ledige rammeområder, der ikke er lokalplanlagt.*

**Befolkningsredegørelse**

Assens Kommune er beliggende på den fynske vestkyst ud til
Lillebælt. Vores kyststrækning er på ca. 107 kilometer, og kommunens største by,
Assens med ca. 6.000 indbyggere, er beliggende ved kysten.

Det samlede indbyggertal i kommunen er ca. 40.500 personer.
De syv største byer; Assens, Haarby, Glamsbjerg, Aarup, Tommerup, Tommerup
Stationsby og Vissenbjerg huser hovedparten af kommunens indbyggere. Resten bor
i små bysamfund med under 200 indbyggere og i fritliggende huse på landet.

Livet leves på mange forskellige måder i Assens Kommune. Her
kan alle udleve deres boligdrømme, uanset om boligen ligger midt i byen, nær
skoven, ved vandet eller med udsigt over markerne. Naturen er altid lige uden
for døren, og vi har boligformer til alle. Den mindre lejlighed, den store
villa og boligen, der rummer bofællesskabet. Her kan der både ejes og lejes,
bygges nyt eller sættes i stand fra kælder til kvist. Vi skaber mulighed for
bosætning, hvor efterspørgslen er til stede, og potentialet er størst.

Assens Kommunes befolkningstal har været faldende i de
senere år, men 1. januar 2025 var der 40.469 indbyggere, mens der i juli samme
år var 40.488 indbyggere. Det befolkningstal er nogenlunde det samme som
angivet i den tidligere kommuneplan, hvor det pr. 1. januar 2021 lå på 40.867
indbyggere. I løbet af den forgangne planperiode toppede befolkningstallet i
2022, hvor det pr. 1. januar var 40.972. Ved kommunesammenlægning lå
befolkningstallet omkring 42.000 frem til 2010. Herefter var der en kortvarig
fremgang i 2016 og 2017, som primært var drevet af indvandring, og siden 2017
faldt befolkningstallet igen.

Assens Kommunes nyeste befolkningsprognose fra foråret 2025
forudser en stagnation i befolkningstallet omkring 40.500 frem mod 2033.

Rent demografisk forventes en overvægt af ældre indbyggere i
Assens Kommune. Fra 2025 frem mod 2033 forventes således et fald i den del af
befolkningen, der er mellem 0 og 66 år, mens andelen af indbyggere fra 67 år og
opefter forventes at stige.

Middellevetiden har i løbet af den forgangne planperiode
varieret en smule. I 2021 var den således 80,78, mens den i 2025 er 80,20. Frem
mod 2033 forventes den at stige til 81,42.

**Perspektivområder til byudvikling efter år 2037**
Assens Kommune har fastholdt hovedparten af perspektivområderne til byudvikling efter år 2033. Perspektivområderne fremgår af nedenstående kort.

**Konsekvensområde for Assens Skibsværft A/S**
Der er udlagt et konsekvensområder omkring produktionsvirksomheden Assens Skibsværft A/S. Konsekvensområdet skal bruges ved vurdering og planlægning af ny støjfølsom arealanvendelse, hvor værftet støjer op til de grænser, som er fastsat i værftets miljøgodkendelse, så værftets fremtidige drift ikke bliver begrænset.

Konsekvensområdet er en ”opmærksomhedszone”, der anviser, hvor kommunen i sin planlægning for miljøfølsomme anvendelser skal være særlig opmærksom på værftet og den dertilhørende retningslinje stiller krav om, at der skal redegøres for planens virkning på skibsværftet, herunder skibsværftets drifts- og udviklingsmuligheder.

Støjkonsekvensområdet er en forudsætning for at kunne udlægge et transformationsområde i henhold til Planlovens § 11b stk. 1 pkt. 16, hvor Miljøstyrelsens vejledende støjgrænser for boliger kan overskrides med op til 5 dB.

Kommunen skal ved afgrænsning af konsekvensområdet sikre,

- at Miljøstyrelsens grænseværdier for støj, lugt, støv og anden luftforurening kan overholdes.
- at vilkårene i værftets miljøgodkendelse ikke skærpes.
- at værftets udviklingsmuligheder ikke begrænses.

Konsekvensområdet omkring værftet er afgrænset ud fra dagperioden ved overfladebehandling, som viser den største udbredelse af støj over grænseværdien på 45 dB(A) for dagperioden.

Ud fra konturen på 45 dB(A) er støjkonsekvensområdet omkring værftet afgrænset som en cirkel med en radius på 750 meter. I større afstand fra værftet antages det, at terrænforhold og eksisterende bebyggelse vil skærme for støjen, og at støjniveauet generelt vil være under 45 dB(a).

![](https://kommuneplan2025.assens.dk/i/MOLIRIMEDIA/cf3f25c6-ffca-4094-c9ac-08dbb8db3039?width=800)

Den historiske bykerne, midtbyen og parcelhusområdet ved Præstevænget er udeladt af konsekvensområdet. Midtbyen er omfattet af lokalplan 1.2-10, som har til formål at sikre den middelalderlige bystruktur og den overordnet velbevarede købstadsarkitektoniske sammenhæng imellem bygningerne. Tilsvarende er boligområdet nord for midtbyen omfattet af lokalplan 1.2-9 for Præstevænget, Blomstervænget og Ved Nordstien. Formålet med denne lokalplan er at sikre den eksisterende bebyggelse og udendørs arealer i området. Samtidigt er midtbyen og Præstevænget primært udbygget med boliger eller andre miljøfølsomme anvendelser. Muligheden for at inddrage nye arealer eller bygninger til miljøfølsomme anvendelser eller at ændre væsentligt på bebyggelsens karakter er derfor begrænsede. Det kan derfor ikke forventes, at der kan ske væsentlige ændringer i midtbyen, som kan få betydning for skibsværftets drift og udviklingsmuligheder.

Der er foretaget støjberegning og optegnet støjkonturer baseret på værftets faktiske drift ved overfladebehandling. De beregnede støjkonturer er vist pr. 5 db(A) på nedenstående figur. Konturen for støj under 45 dB(A) er vist med en lys grøn farve.

Disse støjkonturer viser støjen fra værftet med den drift, der er på nuværende tidspunkt. Ved afgrænsningen af konsekvensområdet er der taget udgangspunkt i Miljøstyrelsens vejledende støjgrænser for områdetype 5. Boligområder for åben og lav boligbebyggelse samt campingpladser og ferielejligheder i bymæssig bebyggelse. Støjgrænserne er for dag/aften/nat perioden 45/40/35 dB(A). Konsekvensområdet er dermed afgrænset i forhold til den mest støjfølsomme anvendelse, som er relevant ved planlægning af nye støjfølsomme anvendelser i Assens by.

Vurderingen af værftets udviklingsmuligheder bør følge ”Vejledning om produktionsvirksomheder i kommune- og lokalplanlægning” tage udgangspunkt i

•    Værftets nuværende lempede miljøvilkår i værftets miljøgodkendelse fra 2019

•    Støjgrænseværdien for arealanvendelsen af områder til nye boliger

•    Værftets udviklingsønsker/udvidelsesplaner

•    Muligheden for overskridelse af grænseværdierne for op til 5 dB ved udlæg af et transformationsområde.

Ifølge vejledningen kan værftet alene forurene op til de vilkår, der er fastsat i dens miljøgodkendelse. Det er desuden kommunen, der endelig vurderer, hvor store udviklingsmuligheder en virksomhed har i den gennemførte planlægning.

**Transformationsområde**
For at muliggøre opførelse af nye boliger på støjbelastede områder samtidig med, at skibsværftets vækst- og udviklingsmuligheder søges sikret bedst muligt, udlægges der et transformationsområde ved Nordre Havnevej.

**Lokalplanlægning for boliger i et transformationsområde**
I fremtidige lokalplaner for nye boliger i transformationsområdet skal der redegøres for, hvordan der tages højde for, at de nye boliger ikke påvirker skibsværftets drifts- og udviklingsmuligheder, og at værftet dermed har mulighed for at fastholde sin miljøgodkendelse fra 2019.

I et transformationsområde kan der i henhold til Planlovens § 15a stk. 3 planlægges for boliger, når støjen fra virksomheder på arealet ikke overskrider grænseværdier for støj med mere end 5 dB på den facade og udendørs opholdsarealer, der vender ud mod virksomheden.

Kommunen kan udpege transformationsområder i områder med særlige byudviklingsinteresser knyttet til området.

Transformationsområder giver mulighed for at planlægge for boliger i varigt støjbelastede områder, hvis:

- arealet ligger i 1. række mod virksomhederne.
- støjen ikke overskrider Miljøstyrelsens vejledende støjgrænser på facaden og udvalgte udendørs opholdsarealer (f.eks. altaner) for den første række af boliger, som vender mod virksomheden, med mere end 5 dB.
- lokalplanen fastsætter krav om isolering mod tøj, som sikrer at grænseværdierne for støj overholdes indendørs med åbne vinduer.
- der er udendørs opholdsarealer i tilknytning til boligerne, hvor de vejledende grænseværdier er overholdt.
- Miljøstyrelsens vejledende grænseværdier er overholdt for bagvedliggende boliger - både på facaden samt på udendørs opholdsarealer.

![](https://kommuneplan2025.assens.dk/i/MOLIRIMEDIA/fff1bfc9-f746-4f12-da73-08dd6148a5be?width=800)

Transformationsområder kan alene bruges i forhold til støj fra produktionsvirksomheder. Transformationsområder kan ikke anvendes i forhold til støj fra havne.

**Byomdannelsesområde**
Rammeområde 1.2.C.18 ”Centerområde mellem med Stranden, Nordre Havnevej og Havnegade” kan ud over støj fra skibsværftet også være påvirket af støj fra Nordre Mole og DLG.

De vejledende grænser for støj fra virksomheder i bycenterområdet vil være henholdsvis 55/45/40 dB for dag/aften/nat perioden.

Der kan i henhold til Planlovens § 15a stk. 2 lokalplanlægges for støjfølsom anvendelse i byomdannelsesområder, som er påvirket af støj fra virksomheder over de vejledende støjgrænser, når der er sikkerhed for, at støjbelastningen er bragt til ophør i løbet af en periode, der ikke væsentligt overstiger 8 år, efter at den endeligt vedtagne lokalplan er offentliggjort.

Det forudsættes, at det i lokalplanens redegørelse er afklaret, hvordan støjbelastningen bringes til ophør. I takt med, at det bliver klart, hvordan området ønskes udformet, kan der udarbejdes detaljeret redegørelse for, hvordan støjen fra de enkelte virksomheder vil blive dæmpet eller fjernet. Oplysningerne i lokalplanredegørelsen om mulighederne for at dæmpe støjen fra virksomhederne skal så vidt muligt være tilvejebragt i dialog med de berørte virksomheder

Efter ibrugtagning af boliger eller anden støjfølsom anvendelse kan kommunen meddele påbud til virksomhederne, herunder revision af vilkårene i en miljøgodkendelse (efter at retsbeskyttelsesperioden er udløbet).

Miljøstyrelsen anbefaler i denne sammenhæng, at de vejledende grænseværdier for udendørs støj lempes med 5 dB i overgangsperioden. De almindelige vejledende grænseværdier i vejledning 5/1984 skal dog stadig være overholdt på de udendørs opholdsarealer i umiddelbar tilknytning til boligerne. Det kan undertiden - især i forbindelse med omdannelse af havneområder - være påkrævet at fastsætte støjvilkår, som i den første periode efter konkret vurdering er lempet med mere end 5 dB i forhold til de vejledende støjgrænser. Det kan efter Miljøstyrelsens opfattelse kun undtagelsesvis forsvares at meddele afgørelser, hvor støjgrænserne for aften- og natperioden er lempet med mere end 5 dB.

Efter at den ny støjfølsomme anvendelse er begyndt, kan myndighederne efter Miljøbeskyttelseslovens lovens § 41b stk. 1 meddele nye, skærpede støjgrænser i miljøgodkendelsen til listevirksomheder, hvor retsbeskyttelsesperioden er udløbet. Myndighederne kan tilsvarende meddele påbud om støjdæmpning til de virksomheder, der ikke er godkendelsespligtige, efter lovens § 42 stk. 1. Indgrebene er nødvendige for at sikre, at støjbelastningen bringes til ophør, og myndighederne kan foretage disse indgreb, selv om der ikke aktuelt er beboerklager over støj.

![](https://kommuneplan2025.assens.dk/i/MOLIRIMEDIA/5e6a9632-bbbb-4195-c9a0-08dbb8db3039?width=800)
